


22 november 2016
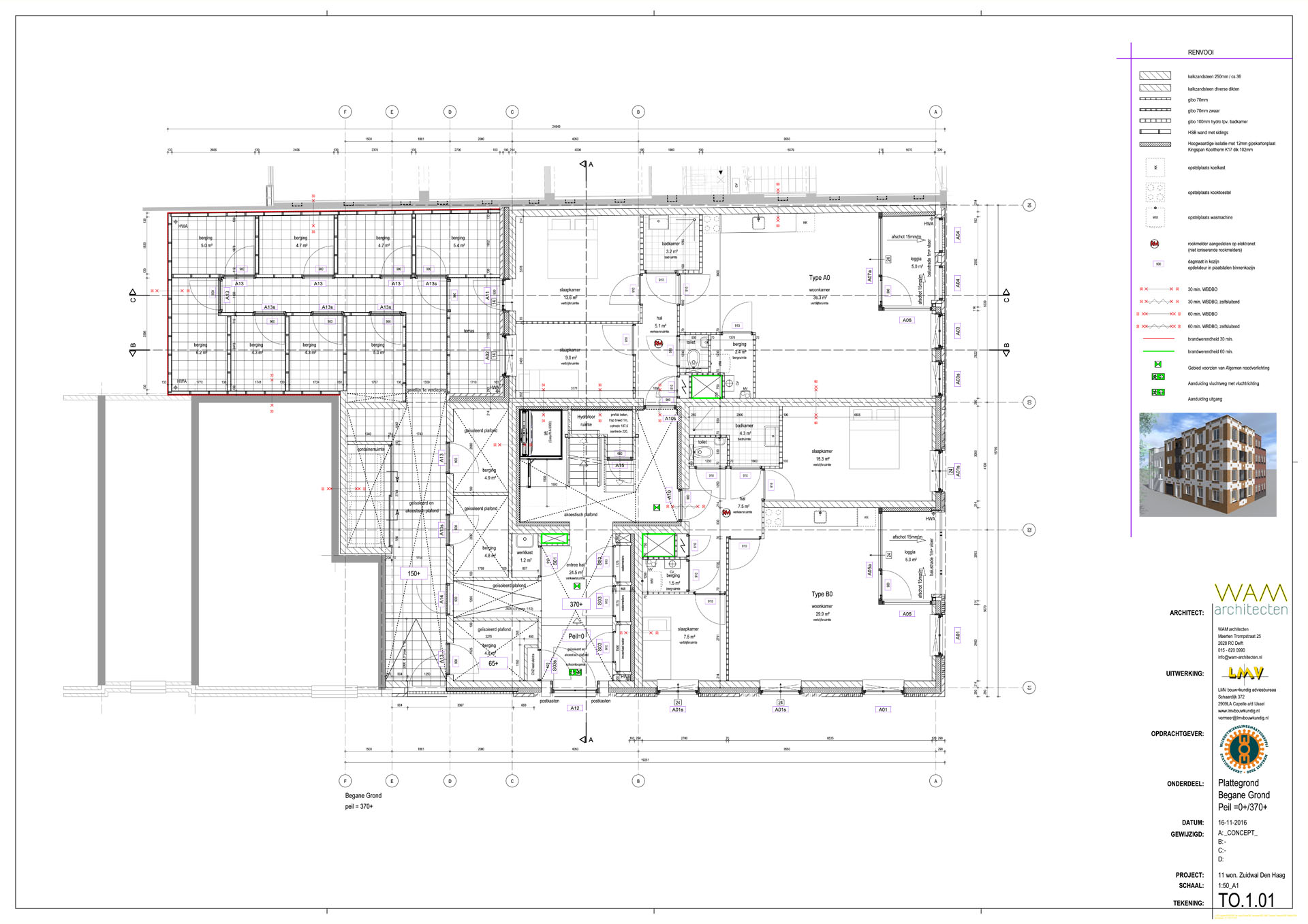
In opdracht van WAM Architecten, heeft LMV de bouwkundige uitwerking gedaan, voor de aanvraag van de omgevingsvergunning voor 11 appartementen aan de Zuidwal te Den-Haag. De tekeningen zijn uit een BIM model gegenereerd.
Voor de Wijkontwikkelingsmaatschappij Stationsbuurt – Oude Centrum Den Haag, heeft WAM architecten een ontwerp gemaakt voor een klein nieuwbouwproject. De appartementen zijn ongeveer 80 m2 en hebben een kleine buitenruimte en berging. Als alles voorspoedig verloopt, wordt na de sloop van de bestaande gebouwen gestart met de nieuwbouw en kan het complex in 2017 worden opgeleverd. Zie ook de link van WOM SOC Den Haag.